Apresentamos um espaçoso escritório de coworking, inserido num dos edifícios do condomínio da Cidade Financeira, Business Center de referência de Talatona e do Centro de Luanda. De arquitectura de excelência e de construção moderna, este empreendimento integra empresas de referência e beneficia de uma envolvente com amplos serviços, shopping centers, restauração de qualidade, escolas e hotéis.
Integrar a sua empresa no condomínio da Cidade Financeira, é fazer parte de um ecossistema de eleição, onde figuram empresas de referência do sector financeiro, consultoras, entidades públicas e outros. A elevada qualidade dos serviços de manutenção, higiene e segurança aliam-se à modernidade dos espaços comuns e das zonas de lazer, com jardim flutuante e praça central para o seu conforto.
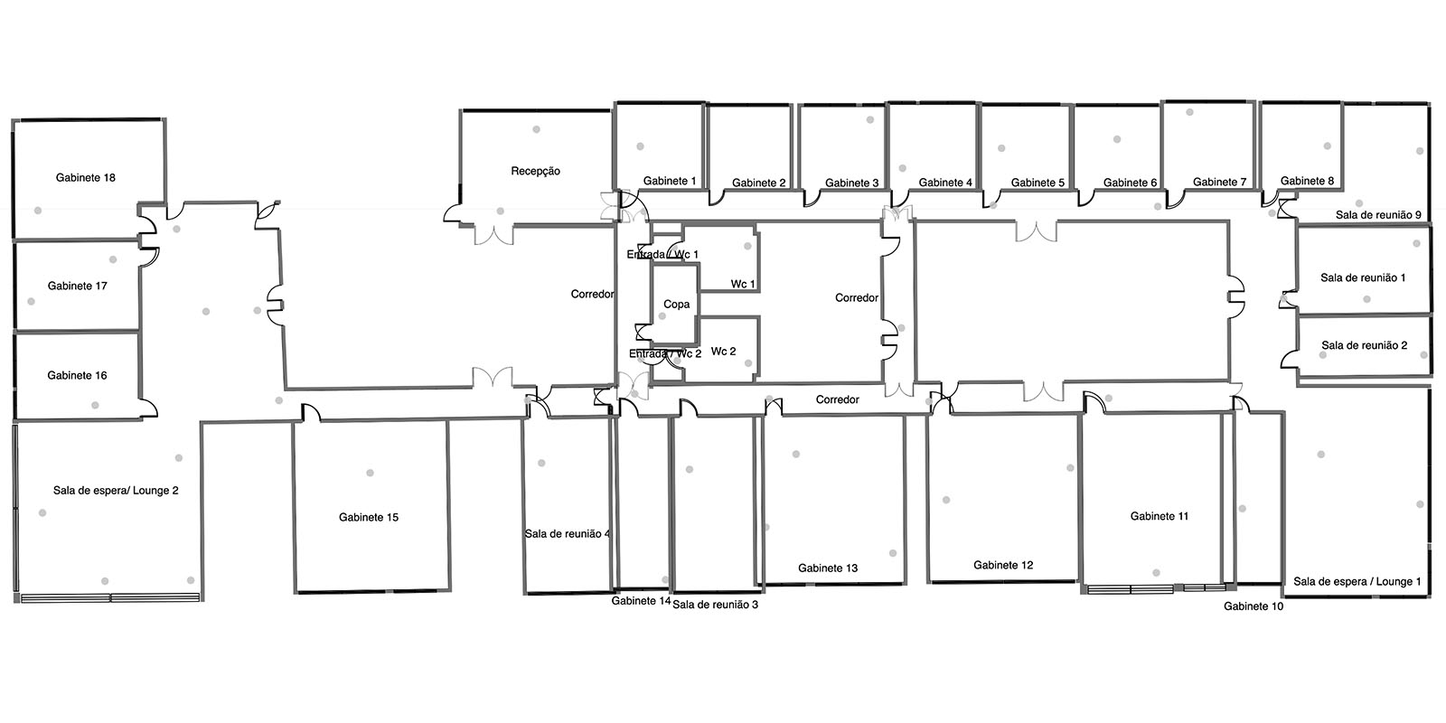
Este escritório é composto por duas fracções, HA e HG, situadas no 2º Piso dos Blocos 9 e 10. A área útil total é de 1.343 m2, com áreas comuns de 661 m2, e encontra-se subdividido em 20 gabinetes, quatro salas de reuniões, duas copas, quatro salas de espera, uma recepção e dois WCs. Estão também incluídos 29 lugares de estacionamento a serem distribuídos pelos gabinetes de acordo com a sua dimensão ou postos de trabalho existentes, aos quais se junta ainda o estacionamento público.
Pertence a um condomínio de enorme prestígio, projectado pela Costa Lopes Arquitectos e construído pela Mota-Engil Angola, equipas reconhecidas a nível nacional e internacional, representando assim a garantia de grande qualidade construtiva e de manutenção, assim como prevendo-se a manutenção do valor do imóvel ao longo do tempo. Adicionalmente, a conservação e configuração deste escritório permite que o futuro proprietário possa arrendar os gabinetes a até 20 empresas diferentes, trazendo assim, o efeito de diversificação e minimização de risco tornando a compra deste escritório num investimento atractivo, estável e rentável.




